Skip to content
Primary Menu
Le cabinet
Activités
Aménagement
Assistance foncière
Foncier
Numérisation 3D
Copropriété
Topographie
Vous êtes ?
Un particulier
Un professionnel de l’immobilier
Un architecte
Une collectivité
Réalisations
Demande de devis
Rejoignez-nous
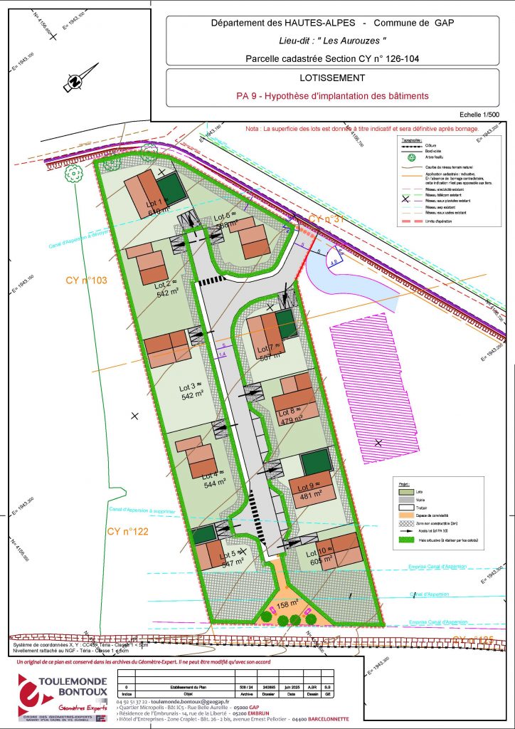
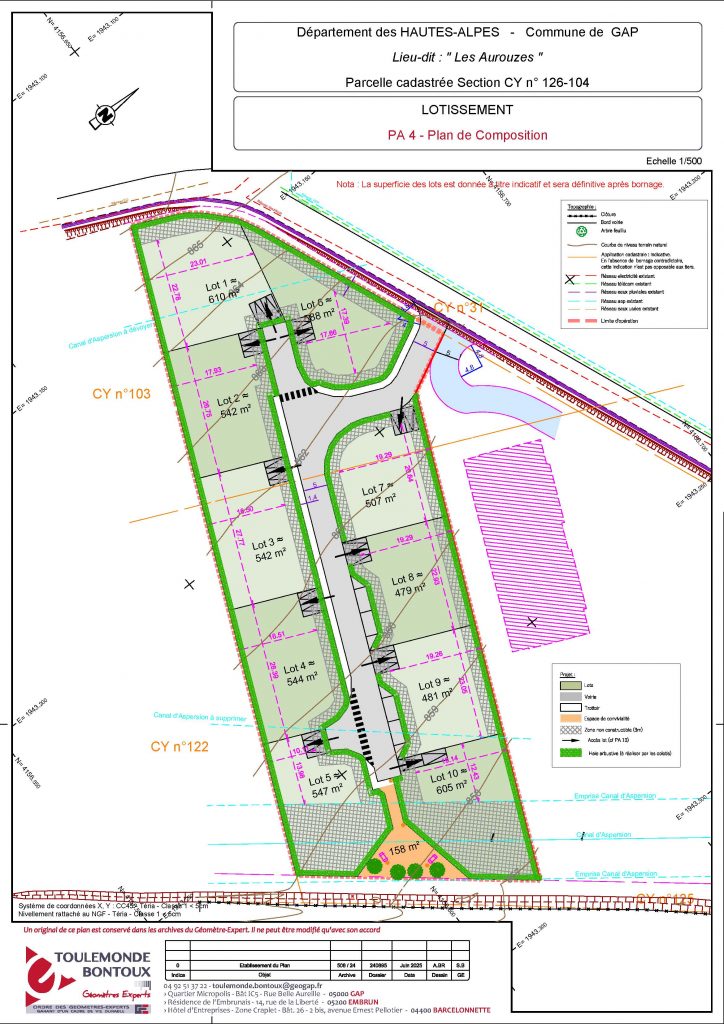
Lotissement GAP
Mission :
Déposer le permis d’aménager pour créer un lotissement
Descriptif :
Projet
Le cabinet
Activités
Aménagement
Assistance foncière
Foncier
Numérisation 3D
Copropriété
Topographie
Vous êtes ?
Un particulier
Un professionnel de l’immobilier
Un architecte
Une collectivité
Réalisations